Your cart
Il n'y a plus d'articles dans votre panier
- -5%
- Nouveauté
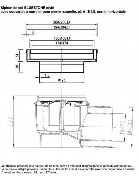
Siphon de sol 20x20 cm pour pierre bleue Bluestone Inox ACO
Sortie Horizontale
BIH002
Siphon de sol Bluestone Inox ACO avec couvercle à carreler et fente discrète. Idéal pour pierre bleue 20x20 cm. Élégant, robuste et pratique pour caves, terrasses, garages et piscines.
Paiement sécurisé
* option disponible à l’étape livraison de votre commande, sauf produits de grandes dimensions livrés avec Geodis

Siphon de sol pour pierre bleue Bluestone Inox ACO
Siphon de sol élégant en inox, spécialement conçu pour la pierre bleue naturelle (20x20 cm). Doté d’un couvercle à carreler avec fente discrète, il s’intègre parfaitement dans vos sols tout en garantissant une évacuation efficace des eaux.
Caractéristiques principales :
- Fabriqué en acier inoxydable de haute qualité avec corps en matière synthétique robuste
- Sortie horizontale ou verticale selon vos besoins
- Compatible caves, buanderies, terrasses, vérandas, garages, sous robinets et piscines extérieures
- Classe de résistance B 125 : adapté aux charges domestiques
- Rehausse inox aux dimensions exactes de la pierre bleue 20x20 cm
- Couvercle carrelable avec hauteur libre de 2,5 cm
- Fente périphérique assurant une collecte discrète de l’eau
- Accès total possible en retirant le couvercle pour vider un seau
Tableau technique des modèles disponibles :
| Numéro d'art. | Description | Longueur (mm) | Largeur (mm) | Hauteur (mm) | Sortie ø (mm) |
|---|---|---|---|---|---|
| BIV001 | Siphon avec sortie verticale | 200 | 200 | 220 | 110 |
| BIH002 | Siphon avec sortie horizontale | 200 | 200 | 190 | 75/110 |
Applications recommandées :
- Installations intérieures : caves, buanderies, garages, sous robinets
- Aménagements extérieurs : terrasses, vérandas, abords de piscine
Optez pour le Siphon de sol Bluestone Inox ACO pour un drainage efficace et discret, parfaitement adapté à la pierre bleue naturelle.
Ces produits peuvent vous intéresser